Udlejning
40 34 85 58
Administration
48 88 38 68

Ormslevvej

271

V,

8260

Viby J

ÅBENT HUS –  Oplev vores nye boliger

Ormslevvej 271 – Stavtrup, 8260 Viby J

LØRDAG DEN 9. MAJ 2026

Fra kl. 11.00 til 13.00

📷 BILLEDER KOMMER

Velkommen til Ormslevvej 271 i attraktive Stavtrup – et roligt og velfungerende område i Viby J.
Beliggenheden er særdeles praktisk med blot ca. 20 meter til indkøbsmuligheder som 365discount og Rema 1000, så hverdagens fornødenheder altid er lige ved hånden. Nærmeste skole ligger desuden kun omkring 250 meter fra boligen, hvilket gør området særligt attraktivt for børnefamilier.
Området byder samtidig på grønne omgivelser og gode stisystemer, og med nem adgang til Aarhus centrum får du en ideel kombination af ro, natur og byliv.
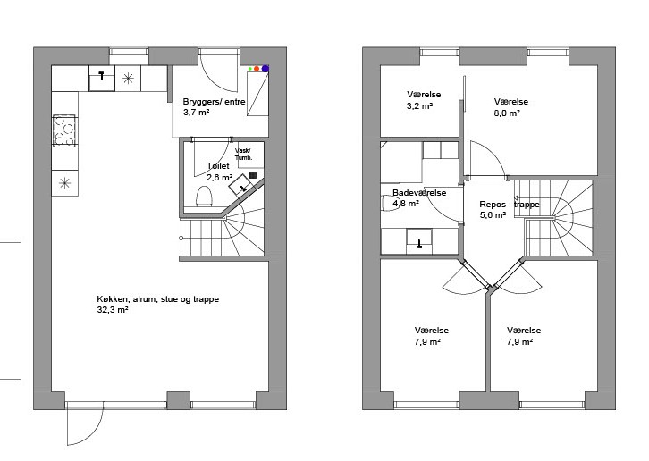
Her udbydes helt nyopførte boliger i 2 plan fra 90 til 102 kvm med moderne indretning og optimal udnyttelse af kvadratmeterne. I stueplan bydes du velkommen i entré/bryggers samt et lyst og indbydende køkken-alrum med alle hårde hvidevarer i åben forbindelse med stuen – et naturligt samlingspunkt i boligen. Herudover findes et gæstetoilet med vaskesøjle bestående af vaskemaskine og tørretumbler.
På 1. sal fordeler en repos boligen til et lækkert badeværelse, tre gode værelser samt et ekstra mindre rum, oplagt som kontor eller
walk-in.
En gennemtænkt bolig med plads til både hverdag og familieliv – i trygge og attraktive omgivelser.

Til hver bolig hører én parkeringsplads, hvor der er mulighed for installation af ladestander til elbil.

 

 

 

  • 93m2
  • 5 Værelser
  • 12361,-
  • 2026-07-30

NYHED – ÅBENT HUS 9. Maj 2026

ÅBENT HUS –  Oplev vores nye boliger

Ormslevvej 271 – Stavtrup, 8260 Viby J

LØRDAG DEN 9. MAJ 2026

Fra kl. 11.00 til 13.00

📷 BILLEDER KOMMER

Velkommen til Ormslevvej 271 i attraktive Stavtrup – et roligt og velfungerende område i Viby J.
Beliggenheden er særdeles praktisk med blot ca. 20 meter til indkøbsmuligheder som 365discount og Rema 1000, så hverdagens fornødenheder altid er lige ved hånden. Nærmeste skole ligger desuden kun omkring 250 meter fra boligen, hvilket gør området særligt attraktivt for børnefamilier.
Området byder samtidig på grønne omgivelser og gode stisystemer, og med nem adgang til Aarhus centrum får du en ideel kombination af ro, natur og byliv.
Her udbydes helt nyopførte boliger i 2 plan fra 90 til 102 kvm med moderne indretning og optimal udnyttelse af kvadratmeterne. I stueplan bydes du velkommen i entré/bryggers samt et lyst og indbydende køkken-alrum med alle hårde hvidevarer i åben forbindelse med stuen – et naturligt samlingspunkt i boligen. Herudover findes et gæstetoilet med vaskesøjle bestående af vaskemaskine og tørretumbler.
På 1. sal fordeler en repos boligen til et lækkert badeværelse, tre gode værelser samt et ekstra mindre rum, oplagt som kontor eller
walk-in.
En gennemtænkt bolig med plads til både hverdag og familieliv – i trygge og attraktive omgivelser.

Til hver bolig hører én parkeringsplads, hvor der er mulighed for installation af ladestander til elbil.

 

 

 

Oplysninger om boligen
Størrelse
93m2
Værelser
5
Badeværelse
1
Overtagelse
2026-07-30
Opført
01/05/2026
Type
Bolig
  • Husdyr IKKE tilladt
  • Seniorvenlig
  • Have
  • Altan / Terrasse
  • Parkering
  • Vaskemaskine
  • Opvaskemaskine
  • Tørretumbler
Information

Vil du vide mere om boligen?

Har du tjekket, hvor meget du kan få i boligstøtte? Tjek det lige her.

Galleri

Se alle billeder

Er du interesseret?

Vi ser frem til at vise dig denne skønne bolig – kontakt os gerne for en fremvisning.

Book fremvisning

Udfyld formularen nedenfor, så kontakter vi dig og aftaler tidspunkt.

Dokumenter

Overblik over dokumenter til boligen